导航
Chinese
13
2019-08
90m²北欧小三居,简简单单才叫美!
阅览量:63

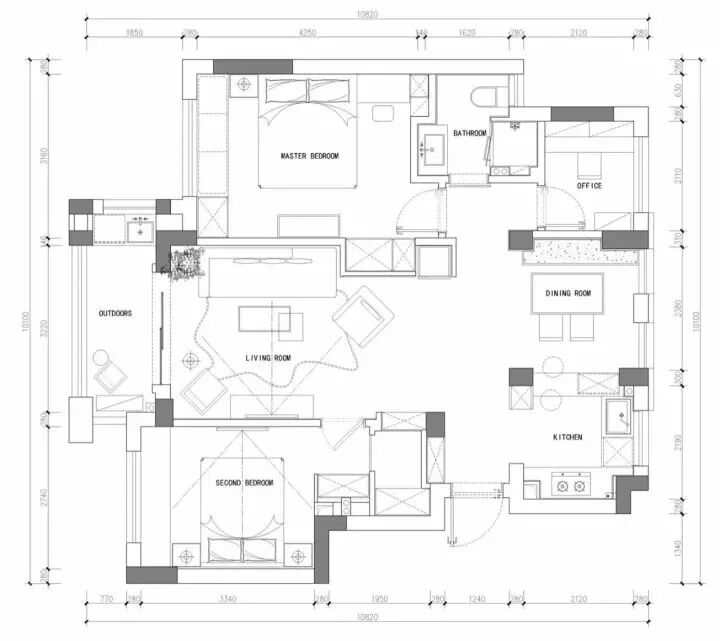
这套仅有90平米的小三房,以简简单单的北欧风格装修,通过灰色简约的格调,结合年轻大方的舒适格调,打造出一个轻松优雅的格调。


 

白色的鞋柜与白色的墙面融为一体,简单又大气,重要的是柜子大,实用!

电视背景墙简单的刷白漆,所以很好的把进入卧室的门藏起来了,这就是我们常常听到的隐形门。

阳台推拉门的墙面刷成青色,沙发背景墙刷白漆并用一组挂画装饰,再搭配舒适的浅色沙发、灰色椅子,地面再铺上一块地毯,简约舒适的客厅就出来了。

客厅看向餐厅的视角,除了餐桌区域外似乎整个空间都没有主灯,只采用了筒灯照明,简洁的天花板,看起来更加大气。

两盏单头吊灯正对的餐桌,让就餐显得更加有情调。

同时还设计了卡座,搭配木色的餐桌,青色的椅子,温馨中又带有活力,很适合浪漫的小两口烛光晚餐。

开放式的厨房,光线更通透,餐厅与厨房之间做了一个吧台,让就餐环境又多了一个选择。

白色的小瓷砖,搭配白色的橱柜,简洁的北欧风很好的呈现出来了。

蓝色的背景墙,选用木色的床,再搭配粉色的被子,这样的组合让人百看不厌。

床头摆放一张化妆桌,满足了女主的日常护肤及化妆的需求。

次卧延续了主卧的设计,只是床选择黑色系的,似乎这样的搭配也别有一番风味。

水泥砖墙,让卫生间看起来更加个性,时尚,我想,重要的应该是耐脏。

 

这套北欧风格的案例,没有繁华复杂的装饰,以简简单单的方式走进我们的生活,简单的浪漫,简单的享受。

 

分享
返回列表
x