导航
Chinese
14
2020-05
一百多平简欧新家这么好看,谁说小户型不适合装欧式?
阅览量:34
 简欧的装修风格,是当下比较流行的装风格之一,很多人不想把家装得太有欧式的感觉,因为那样显得太土了,所以喜欢简约一点的欧式风,简单又不失轻奢的小格调,往往这样的装修效果会更具优雅,突显主人的品味。

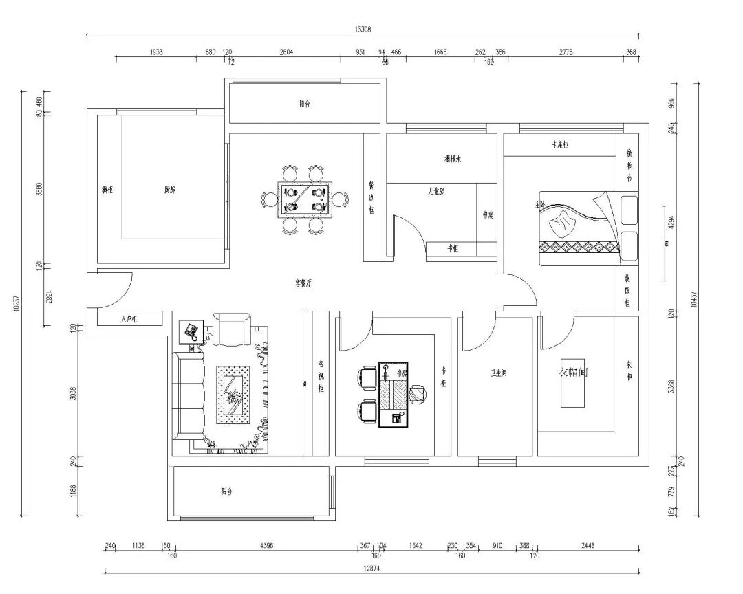
平面图

 

 

 

01

客厅

 

 

 

雅白色和原木色相融合的收纳柜作为电视背景墙,尽显欧式大气风范,这也是足够养眼的~

 

02

厨房

 

 

玻璃材质的吊顶橱柜通透明亮,这里生活的柴米油盐寄存处,把记忆留在最深处,让时光留驻。

 

 

03

餐厅

 

 

听别人说,酒柜是一个看得见的时光机器,是年份的“见证者”。
为了提高柜子的时尚和高级感,可以在暗槽处安装灯带,增加光的层次感,视觉上也减少压抑的感觉。

 

 

04

主卧

 

 

 

主卧延续整体空间大基调的同时,橙色的雅致点缀,暗藏的灯带和原木色碰撞中凸显经典与欧式的交织感,在看似简洁舒适的外表下隐藏着低调的精致高贵,色彩宁静而和谐。

 

 

05

衣帽间

 

 

 

如果把衣帽间比作女人,那衣柜就是女人展示其万千风情的衣服,从简单的门框,到整体的设计搭配,代表着其主人的审美观。每天清晨,伴着柜门不断地开合,衣柜与其主人一同演绎着各自的花样年华。

 

06

书房

 

 

 

一整面墙都被安排了,规划成一个收纳区,空间利用率翻倍
整体书柜陈列着各样书籍,创意的地毯似乎与摆画互动跳跃着,
这种活跃的艺术气息给人一种非常自然、舒适的感觉。

 

 

07

儿童房

 

 

儿童房,进门是一排置顶大衣柜,不用担心收纳问题;还做了一排展示区,弧形避免磕碰
儿童房面积也不大,布置简单,精美的欧式床+床头柜+定制衣柜;还有一个小飘窗,铺上坐垫,摆放两个抱枕,小而温馨。

 

通过简单的线条勾勒空间的简洁干净
雅白的柜体配上黄铜的把手
偏暖的灯光和布艺家居极搭
这些都是体现出生活精致的一面

 

分享
返回列表
x